2-pokojowe mieszkanie w zielonej Strzyży

Mieszkanie na sprzedaż
484 000,00 PLN , Pow. 33,77 m2
Drukuj ofertę
Drukuj ofertę
Typ nieruchomości:
Mieszkanie
Powierzchnia:
33,77 m2
Typ transakcji:
sprzedaż
Liczba pokoi:
2
Lokalizacja:
Gdańsk Strzyża , Bernarda Chrzanowskiego
Rok budowy:
1956
Piętro:
1 na 2
Numer oferty:
315600
Cena za m2:
14 332,25 PLN

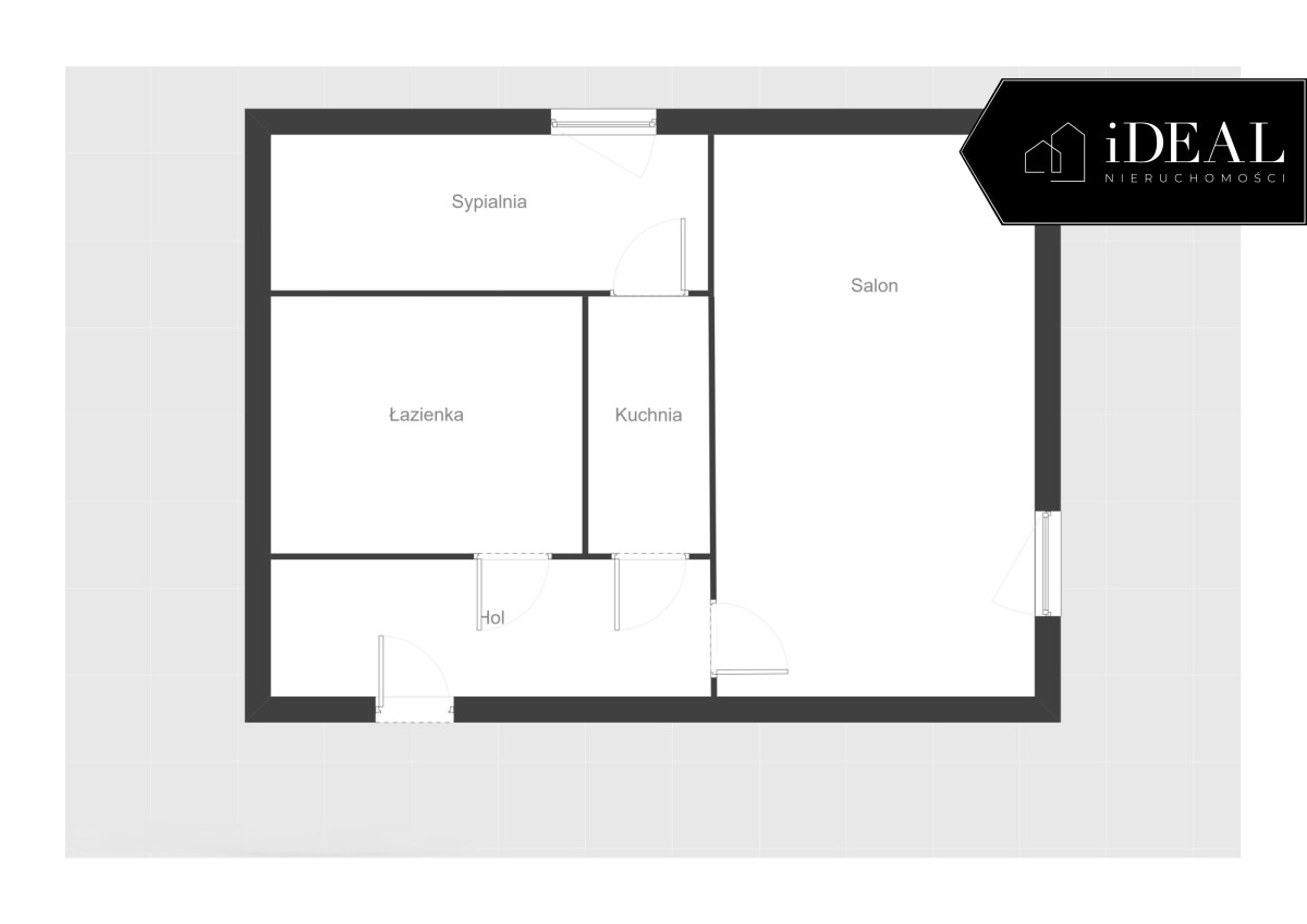
Proponujemy Państwu mieszkanie o powierzchni 33,77 m², zlokalizowane w spokojnej części Gdańska - Strzyży, przy ul. Chrzanowskiego. Lokal mieści się na 1. piętrze dwupiętrowego budynku z cegły z 1956 roku, którego klatka schodowa została niedawno odnowiona i prezentuje się w bardzo dobrym stanie.

To propozycja zarówno dla osób szukających własnego lokum w dobrze skomunikowanej okolicy, jak i dla inwestorów zainteresowanych stabilnym najmem.

Mieszkanie

Układ lokalu jest funkcjonalny i pozwala na wygodne zagospodarowanie przestrzeni. Składa się z dwóch pokoi, osobnej kuchni, łazienki oraz przedpokoju. Wnętrze jest suche, ciepłe i utrzymane w jasnej kolorystyce dzięki zabudowom wykonanym na wymiar z naturalnego drewna.

Najważniejsze cechy:

ogrzewanie z sieci miejskiej,

ciepła woda z piecyka gazowego,

instalacje wodna i elektryczna w miedzi,

Do mieszkania przynależy również przestronna piwnica ok. 10 m², a mieszkańcy mają dostęp do strychu jako części wspólnej.

Budynek i okolica

Nieruchomość znajduje się w kameralnym, niskim budynku otoczonym zielenią. Dzielnica Strzyża oferuje ciszę i komfort, a jednocześnie szybkie połączenia z kluczowymi punktami miasta.

W pobliżu znajdują się:

przystanki tramwajowe i stacja SKM,

sklepy oraz punkty usługowe na osiedlu,

tereny zielone sprzyjające spacerom,

szybki dojazd do Wrzeszcza i kampusu Uniwersytetu w Oliwie.

Parkowanie możliwe jest bezpośrednio przy budynku, wzdłuż ulicy.

Informacje dodatkowe

Lokal posiada księgę wieczystą i pełną własność. Obecnie mieszkanie jest wynajmowane, z umową obowiązującą do 30.11.2025 roku, co czyni ofertę atrakcyjną również dla inwestorów. Niskie koszty utrzymania to dodatkowy atut - czynsz wynosi około 300 zł latem i 700 zł zimą.

Dlaczego warto

spokojna i zielona lokalizacja w Strzyży,

dobre połączenia komunikacyjne,

funkcjonalny układ 2-pokojowy,

niskie koszty eksploatacji,

piwnica i dostęp do strychu,

możliwość modernizacji według własnych potrzeb.

To propozycja dla osób, które szukają wygodnego mieszkania w zielonej części Gdańska z szybkim dostępem do centrum i zaplecza akademickiego.


Gwarantujemy, że z nami kupisz szybko, bezpiecznie i w najlepszej cenie.
Zapewniamy pełne wsparcie na każdym etapie zakupu nieruchomości.
Pomożemy Ci uzyskać kredyt - bez żadnych dodatkowych opłat.
Szukasz sprawdzonej ekipy remontowej, architekta wnętrz lub innych specjalistów?
Żaden problem! Skorzystaj z usług firm, z którymi współpracujemy i ciesz się sprawdzoną jakością.

Zapraszamy do kontaktu!

Ogłoszenie ma charakter informacyjny i nie stanowi oferty handlowej w rozumieniu art. 66 Kodeksu Cywilnego.

Nieprawidłowy adres E-mail